top of page
Esta página web se diseñó con la plataforma
.com
. Crea tu página web hoy.
Comienza ya
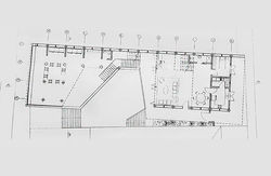
CASA/TALLER EN CHORONI
VIVIENDA DE PLAYA EN UN CONTEXTO COLONIAL. INCORPORA LA PRODUCCION DE CONSERVAS DE PESCADOS. CONSTRUCCIÓN EN MADERA
DISEÑO 5 / FAU UCV /
CARACAS VENEZUELA / 2008
AMANDA ARANCIBIA /
INICIO
PROYECTOS
PROFESIONALES
UNIVERSITARIOS
PUBLICACIONES
CV
CONTACTO
More
Use tab to navigate through the menu items.
bottom of page